Overall services included:
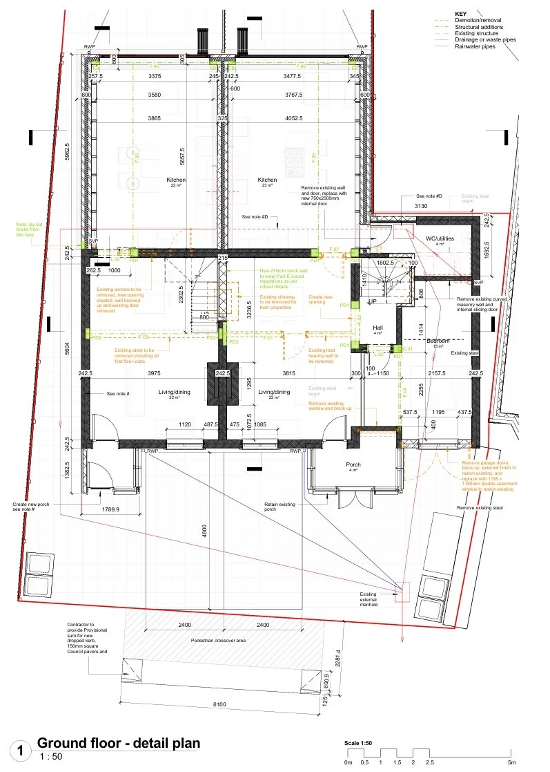
Design of modern 6 meter rear extension, layout re-configuration of cottage including subdivision into two houses
Advising client on planning permission and what can be achieved
Planning permission granted first time with happy client!
Detailed Building regulations drawings to including liaison with Structural Engineer.
Building control application, liaison
The project completed in 2022
